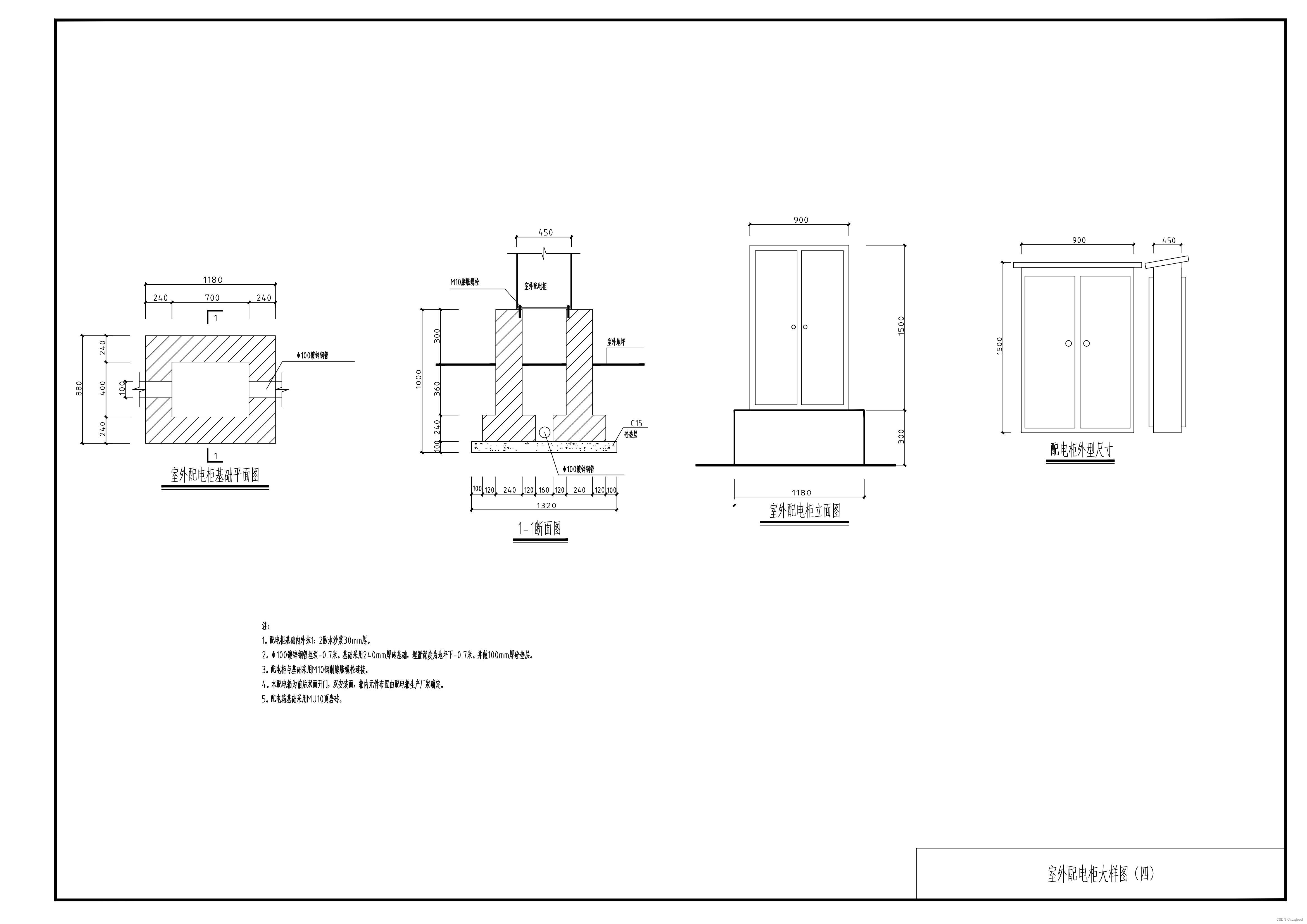
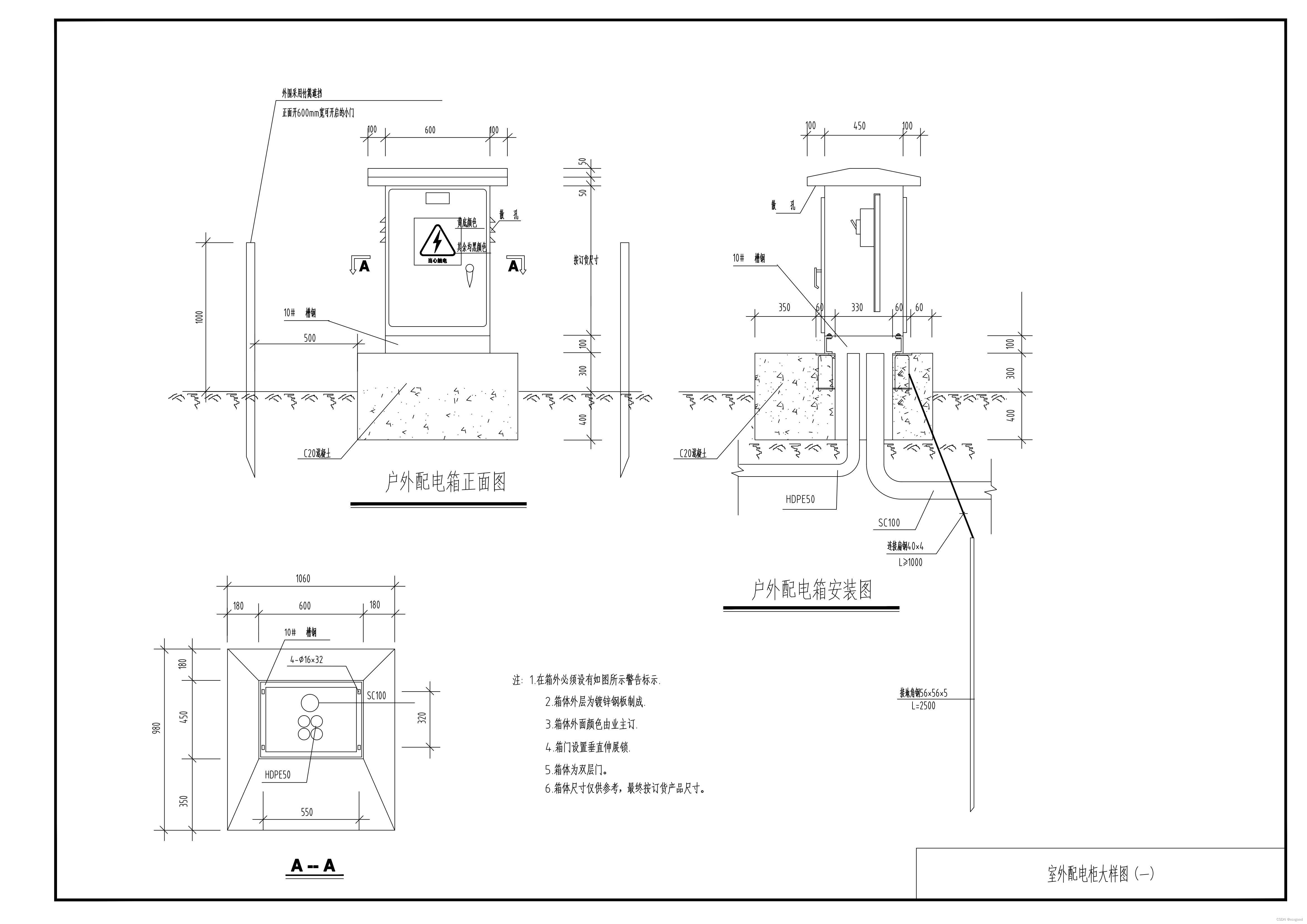
室外配电箱防护等级总结、基础大样图
室外配电箱大样图、基础图,室外配电箱防护等级规范总结。
·
一、室外配电箱防护等级规范条文归纳:
1、《城市夜景照明设计规范》JGJ/T 163-2008,8.3.5:
照明设备所有带电部分应采用绝缘、遮拦或外护物保护,距地面2.8m以下的照明设备应使用工具才能打开外壳进行光源维护。室外安装照明配电箱与控制箱等应采用防水、防尘型,防护等级不应低于IP54,北方地区室外配电箱内元器件还应考虑室外环境温度的影响,距地面2.5m以下的电气设备应借助于钥匙或工具才能开启。
2、《住宅建筑电气设计规范》 JGJ242-2011,6.2.5:
住宅建筑电源进线电缆宜地下敷设,进线处应设置电源进线箱,箱内应设置总保护开关电器。电源进线箱宜设在室内,当电源进线箱设在室外时,箱体防护等级不宜低于IP54。
3、《市容环卫工程项目规范》GB 55013-2021,7.0.5 :
景观照明设施的电气设备应采用防尘、防水、节能型,室外安装的照明配电箱与控制箱等的防护等级不应低于IP54。
二、配电箱基础大样图下载
链接:https://pan.baidu.com/s/1AXeSS5F0WCm0DuCmpoTkdw?pwd=swpd
提取码:swpd
三、室外配电箱基础大样图参考:




更多推荐


所有评论(0)